大阪府大阪市平野区喜連西1丁目 /1LDK /31.06m2 /2階部分 /西北向き /
| 賃料(共益費) | 62,000円 (5,000円) |
|---|
| 間取り(面積) | 1LDK ( 31.06 m2) |
|---|
保証人代行 必須株式会社オリコフォレントインシュア (【大阪】総賃料の100%(支払手数料2%))
閑静な住宅街
3点給湯・クロゼット・シャワー・シリンダーキー・ダウンライト・入居条件 留学生・ペット不可・火災警報器等設置済み・収納・集合郵便受け・縦型照明付洗面化粧台・洗面所にドア・全室フローリング・脱衣所・暖房便座・当社管理物件・高齢者相談・単身者可・浴室乾燥機・コンロ設置済み・エアコン
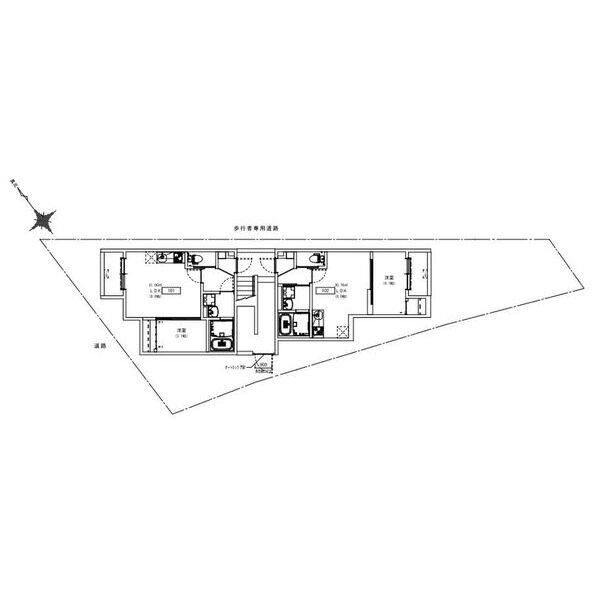
Room Plan
| 間取タイプ | 1LDK | ||
|---|---|---|---|
| 間取詳細 | LDK8.8・洋3.1帖 | ||
| 専有面積 | 31.06m2 | ||
| 方 位 | 西北向き | ||
| 所在階 | 2階部分 | ||
| 賃 料 | 62,000円 | ||
| 管理費 | 5,000円 | ||
| 敷 金 | なし | ||
| 礼 金 | なし | ||
| 状 態 |
退去予定
入居時期:2026年4月27日 |
||
| 物件種別 | [住居用] アパート |
|---|---|
| 所在地 | 大阪府大阪市平野区喜連西1丁目 |
| 交通 | 南大阪線「針中野」徒歩11分 谷町線「平野」徒歩16分 谷町線「平野」徒歩16分 |
| 構造 | 木造 地上3階 |
| 築年 | 2018年08月築 |
| 駐車場 |
○ 角部屋
○ 外国人契約可能 ○ 2人入居可能 ○ 高齢者入居可能 ○ 保証会社利用必須 ○ ルームシェア可能
○ 給湯器 ○ ガスコンロ(2口) ○ システムキッチン
○ 風呂 ○ トイレ(水洗) ○ 洗面台(独立) ○ 浴室乾燥機 ○ シャワートイレ ○ 追い焚き ○ バス・トイレ別 ○ 洗濯機置場(室内)
○ エアコン
○ シューズボックス
○ 光ファイバー ○ UHFアンテナ(地デジ用) ○ インターネット対応 ○ ネット使用料不要
○ オートロック ○ 管理人(巡回) ○ インターホン(カメラ付き)
○ 専用ごみ置場 ○ 電気 ○ ガス(プロパンガス) ○ 水道(公営) ○ 排水(公共下水) ○ バルコニー/ベランダ ○ デザイナーズ ○ 24時間換気システム ○ フローリング ○ 室内物干
| 物件種別 | [住居用] アパート |
|---|---|
| 物件名 | フェリオ喜連(フェリオキレ) |
| 号室名 | 201 |
| 所在地 | 大阪府大阪市平野区喜連西1丁目2-28 |
| 交通 | 南大阪線「針中野」徒歩11分 谷町線「平野」徒歩16分 谷町線「平野」徒歩16分 |
| 構造 | 木造地上3階 |
| 築年月 | 2018年08月 |
| 駐車場 | |
| 町会費 | |
| 所在階 | 2階部分 |
| 方位 | 西北向き   |
| 間取り |
1LDK LDK8.8・洋3.1帖 |
| 専有面積 | 31.06 m2 |
| 状態 | 退去予定 |
| 賃料 | 62,000円 |
| 共益費 | 5,000円 |
| 敷金 | なし |
| 礼金 | なし |
| 他諸経費 |
保険:保険要加入 カギ交換費用:33,000円(契約時) ※ 特記されているものだけを表示していますので、詳しくはお問い合わせの際にご確認ください。 |
| その他 | 契約期間:2年間 |
| オススメ |
○ 保証人代行 必須株式会社オリコフォレントインシュア (【大阪】総賃料の100%(支払手数料2%)) 閑静な住宅街 3点給湯・クロゼット・シャワー・シリンダーキー・ダウンライト・入居条件 留学生・ペット不可・火災警報器等設置済み・収納・集合郵便受け・縦型照明付洗面化粧台・洗面所にドア・全室フローリング・脱衣所・暖房便座・当社管理物件・高齢者相談・単身者可・浴室乾燥機・コンロ設置済み・エアコン |
| 設備・条件 | ○ 角部屋 ○ 外国人契約可能 ○ 2人入居可能 ○ 高齢者入居可能 ○ 保証会社利用必須 ○ ルームシェア可能 ○ 給湯器 ○ ガスコンロ(2口) ○ システムキッチン ○ 風呂 ○ トイレ(水洗) ○ 洗面台(独立) ○ 浴室乾燥機 ○ シャワートイレ ○ 追い焚き ○ バス・トイレ別 ○ 洗濯機置場(室内) ○ エアコン ○ シューズボックス ○ 光ファイバー ○ UHFアンテナ(地デジ用) ○ インターネット対応 ○ ネット使用料不要 ○ オートロック ○ 管理人(巡回) ○ インターホン(カメラ付き) ○ 専用ごみ置場 ○ 電気 ○ ガス(プロパンガス) ○ 水道(公営) ○ 排水(公共下水) ○ バルコニー/ベランダ ○ デザイナーズ ○ 24時間換気システム ○ フローリング ○ 室内物干 |
| 情報更新日 | 2026-03-13 07:39:49 |
| お問合せ |
お問い合わせの際に 「フェリオ喜連(フェリオキレ) 201」 とお伝えいただくとスムーズです。
株式会社エコホームズ
大阪府大阪市淀川区宮原1丁目1-38
TEL:0120-982-212
|

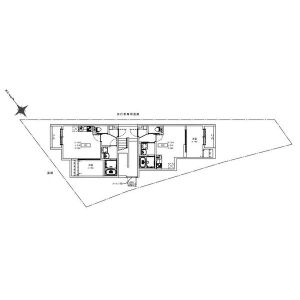
| 間取り | / 1LDK LDK8.8・洋3.1帖 | ||
|---|---|---|---|
| 完成年月 | / 2018年08月 | ||
| 構造 | / 木造地上3階 | ||
| 入居可能日 | / 退去予定 | ||
| 総戸数 | / | ||
| 契約形態 | / | ||
| 駐車場 | / | ||
| 売却(敷引) | / | ||
| 割引サービス | / | ||
| 設備 | / ○ 角部屋 ○ 外国人契約可能 ○ 2人入居可能 ○ 高齢者入居可能 ○ 保証会社利用必須 ○ ルームシェア可能 ○ 給湯器 ○ ガスコンロ(2口) ○ システムキッチン ○ 風呂 ○ トイレ(水洗) ○ 洗面台(独立) ○ 浴室乾燥機 ○ シャワートイレ ○ 追い焚き ○ バス・トイレ別 ○ 洗濯機置場(室内) ○ エアコン ○ シューズボックス ○ 光ファイバー ○ UHFアンテナ(地デジ用) ○ インターネット対応 ○ ネット使用料不要 ○ オートロック ○ 管理人(巡回) ○ インターホン(カメラ付き) ○ 専用ごみ置場 ○ 電気 ○ ガス(プロパンガス) ○ 水道(公営) ○ 排水(公共下水) ...その他 | ||
| 備考 | / | ||
フェリオ喜連(フェリオキレ) 201
物件所在地:大阪府大阪市平野区喜連西1丁目
南大阪線「針中野」徒歩11分
谷町線「平野」徒歩16分
谷町線「平野」徒歩16分
62,000円
| ■管理費 | 5,000円 |
|---|---|
| ■敷金 | なし |
| ■礼金 | なし |
|
<その他費用>
保険:保険要加入 カギ交換費用:33,000円(契約時) |
|